
The museum and gallery visit has long been a highly curated experience. Visitors are guided through a carefully orchestrated sequence of rooms, with hand-picked works arranged to tell a specific narrative, supported by signage, graphics, scenography, and calibrated lighting. Even the rarely changed exhibitions - the permanent collections, also typically rely on a strong curatorial voice— led by noted artists or curators—to set institutional stance and shape interpretation.
At the same time, storage areas for museums and galleries are typically kept separately—often within the same building but under tightly controlled access, and not infrequently off-site in dedicated facilities, such as the Louvre Conservation Centre. These zones have long been understood as highly controlled spaces not only in terms of access, but also in relation to climate, humidity, archival order, handling protocols, maintenance, and repair. For fear of thefts and that the spatial, environmental, and sequencing requirements of the archive could be disturbed, storage has traditionally been somewhat secretive and primarily serves academic researchers and art practitioners by request. Rarely does the general public gain a comprehensive picture of the works safeguarded by any given institution.
However, this is gradually changing. In recent years, smaller galleries and storage facilities have experimented with integrating storage into display to save space while revealing more of their holdings, and some art-and-model repositories have periodically opened their stacks to let visitors experience "behind the archive." More recently, with the opening of two significant storage-as-museum projects—the V&A East Storehouse and the Depot Boijmans Van Beuningen—the conversation has shifted further. A supplementary museum type is emerging: one that complements the traditional, tightly authored exhibition with a more open, self-curated journey through the collection.

Storage as Display: Compact Galleries, Deployable Archives
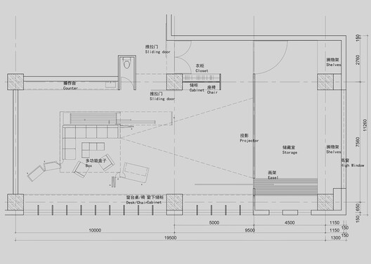
At smaller scales, the art scene has been testing "storage as display," or "storage as gallery," as part of the visitor experience. These attempts often appear in more exclusive, private viewings that require less narrative staging and function somewhat like market-adjacent encounters—especially in galleries. In Hong Kong, where available space is limited and land prices are extremely high, it feels natural to explore storage-and-display in one place. With careful design, can the two functions merge within a compact footprint, maintaining the atmospheric qualities of a gallery while, when needed, providing appropriate security and protection for works not on show?

Hong Kong Art Storage by penda demonstrates that they can, and more. Located within a commercial tower and occupying less than 2,000 square feet, penda thoughtfully integrates storage, back-of-house, gallery, viewing space, lounge, and ancillary functions through a deployable system. When closed, a copper-finished rectangular volume reads as an art object within the gallery. When opened, that volume reveals a suite of uses: slide-out art storage for viewing, a well-appointed lounge with leather-padded furniture and wall panelling that contrasts with the copper cladding. Additional art storage/display is concealed behind a secondary wall, plus a projection surface. Carefully calibrated, the system allows the archive—when fully "unrolled" for display—to become the gallery itself. In plan, storage elements flank the space, immersing the client in a richly finished, fully reconfigurable environment that adapts to different situations. This adaptable, deployable strategy tests storage-as-gallery without the pressure of permanence or the commitment such an approach would entail if it proved less convincing than conventional exhibitions with precise curation and a purpose-built scenographic finish.


Another instructive example concerns artefact storage for architectural models. Archi Depot Museum in Tokyo has been developing this idea for nearly a decade—first as the Archi Depot Tokyo Exhibition at the Triennale di Milano in 2015, then as a permanent Tokyo venue from 2016 onwards. It explicitly explores "archival as exhibition": essentially, it is a climate-controlled architectural model storage facility combined with a museum. Practices pay to store process and presentation models; the public pays to view them. Industrial shelving and a carefully organised cataloguing system create a warehouse-gallery in which visitors are immersed in the working memory of practices—study models, alternatives, fragments, and finals—rather than a single, authored storyline. Ideas are less directed; visitors encounter an abundance of information and design exploration; interpretation is largely unguided. The result is a new kind of museum experience, one that helps pave the way for larger institutions to consider balancing storage and archive with publicly accessible "museum" in the same architectural frame.

From Vault to Venue: How Major Museums Open the Archive
Larger museums are beginning to test this idea as well. On one level, activating a greater share of the collection engages wider audiences and can support revenue, while also generating new conversations, fresh lines of research, and attention for works that might otherwise remain overlooked. On another, exhibition-making has long been a professionally trained, professionally led discipline in which the sequencing of works and the terms of encounter are deliberately crafted. Opening the archive to more open-ended viewing is, in this sense, democratising: visitors assemble their own narratives. It also creates a feedback loop across platforms and social media, helping institutions gauge public interest and refine future exhibitions to better serve their communities.
Dangrove Art Space by Tzannes was perhaps one of the earlier tests back in 2018. The client's brief called for an art storage facility to support a nearby gallery; the architectural response proposed a hybrid that entwines storage with curatorial, conservation, research, library, workshop, and exhibition functions—spaces typically associated with public museums. Here, circulation is choreographed so that visitors encounter both displayed works and glimpses of the back-of-house. While dedicated exhibition areas remain distinct and the storage sequence is clearly delineated, the project signals a model in which storage is not simply a logistical necessity but part of the visitor experience.


Fast-forward to 2021, and Depot Boijmans Van Beuningen by MVRDV offers a more ambitious, comprehensive articulation of "storage as exhibition." At roughly 150,000 square feet and housing more than 150,000 objects, the depot was conceived so that every piece is, in principle, accessible to the public. The architects describe it as "a sturdy engine room," a new kind of museum experience. The glass-mirrored exterior reads as an apt metaphor: the building's presence is literally composed of its surroundings, while the depot's identity is formed by the breadth of artefacts and the people who meet them—an unapologetically direct relationship between object and visitor, with minimal mediation.



Earlier this year, V&A East Storehouse by Diller Scofidio + Renfro opened as another major example. Similar in scale (just over 160,000 square feet) but vastly larger in holdings—more than 250,000 objects, 350,000 books, and 1,000 archives—it repurposes the 2012 London Olympics Media and Broadcast Centre through adaptive reuse. An interconnected atrium provides elevated vantage points over carefully arrayed artefacts, producing an intentionally overwhelming panorama of material. The Storehouse functions alongside the main museum, yet it breaks from the hermetic model of storage by inviting the public into a rationally ordered archive. If more institutions follow suit, there may be a broader shift in which collections open themselves to self-guided discovery even as curated shows continue in parallel.


As this typology takes root, an unexpected analogy comes from dining experiences. The traditional museum or gallery exhibition—highly prepared, tightly curated, and refined—resembles a sushi omakase, where the chef composes a precise sequence. Storage-as-display is closer to an all-you-can-eat tabehodai: the entire spread is visible, and the experience depends on how each visitor navigates abundance. This does not replace the curatorial "chef"; it adds another model of engagement and reflection. With thoughtful tools—wayfinding, metadata, search, study tables, talks, and conservation windows—the open archive may turn information overload into literacy and delight, enlarging the public's conversation with art and culture while giving institutions new ways to listen and respond.





























