
-
Architects: Marcos Acayaba
- Area: 5490 ft²
- Year: 2015
-
Photographs:Nelson Kon
-
Manufacturers: AutoDesk, GRAPHISOFT, Alwitra, Deca, Esmecol, Granitos e Mármores, Hunter Douglas, M7 Sofás, Medsol, Pau Pau, REKA, Solar Móveis, Tosten Glass, Trimble Navigation
-
Lead Architects: Marcos Acayaba

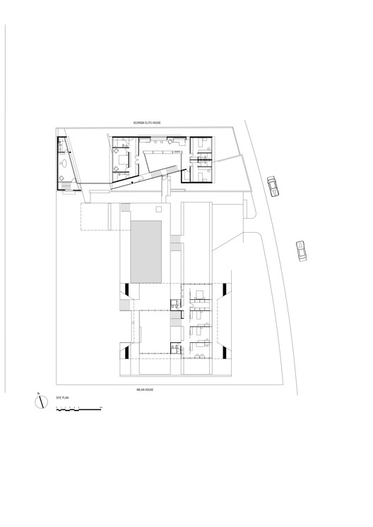
Text description provided by the architects. This house was built next to Milan House, and is integrated with it. The plot has an area of 603 m2 and approximately 15 meters in the front by 40 meters depth. It had previously been occupied by an old residence built in the 50's, located one meter above the street, and about 3 meters below the level of Milan House's main floor. Thus, the new house implanted in this pre-existing terrain came to be organized on a foundation with a basement and a forward pilotis. This allowed its floors to adjust to Milan House's main floors, and also to the street.


























__page-0001.jpg?1572291757)








.jpg?1572292236)






