
Cities are slowly reshaping themselves. Walkable streets, bike-friendly networks, and mixed-use neighborhoods are becoming planning priorities as climate goals, changing lifestyles, and remote work reshape daily patterns. Yet even as these people-centered ideas gain momentum, most cities still rely heavily on private cars, creating a tension between the urban futures we're designing for and the mobility habits that persist today.
This tension has pushed architects and developers to rethink one of the hardest pieces of the urban puzzle: parking. Mixed-use buildings are multiplying, stacking homes, workplaces, and services into tighter footprints, and every square meter has to work harder. The challenge is no longer simply where to put the cars, but how to integrate parking in ways that support density, livability, and long-term adaptability—allowing cities to evolve without letting vehicles dominate their form.

Limited space and the ongoing presence of private vehicles have led architects and developers to explore new approaches that allow them to do more with less—less land, less time, and lower costs—while still meeting growing demands for flexibility, and sustainability. In downtown Oakland, the architects at Solomon Cordwell Buenz, along with developer Behring Companies, embraced an unconventional solution to meet this challenge at the 39-story mixed-use tower 1900 Broadway: automated parking. By using a compact system provided by Utron, the building reduced its parking footprint by over 60%, maximizing efficiency by reclaiming space typically lost to ramps and drive aisles and instead devoting it to resident amenities, retail frontage, and coworking zones.

Optimizing Land Use Through Design
Parking remains essential, however, in dense urban cores, dedicating large areas of land to cars can come at a cost. Oversized parking footprints can displace housing, public spaces, or commercial activity, while overbuilt parking encourages car dependency, congestion, and pollution. Rather than expanding parking to match rising car ownership, cities are experimenting with strategies that manage demand and support mobility: smaller, more efficient garages, shared parking arrangements, and automated parking systems such as fully automated, puzzle, and stacker systems. These approaches allow urban land to be used more productively while still accommodating vehicles when necessary.
This rethink aligns closely with the rise of mixed-use development, which has emerged not only as a response to housing needs but also as a strategy for more sustainable urban growth. Mixed-use projects combine residential, commercial, and public functions within a single site, creating compact, walkable neighborhoods. Vertical mixed-use buildings, in particular, allow architects to stack functions, such as housing above retail, coworking above amenities, maximizing the utility of limited land. By consolidating programs in this way, these developments support reduced-car lifestyles and reflect broader goals of dense, human-centered urban design.


Reconsidering Parking in Dense Cities
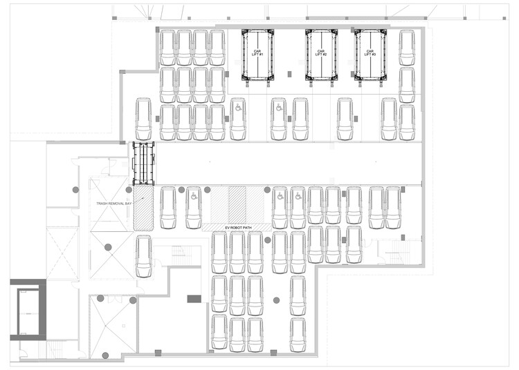
Traditional garages can occupy valuable space that could otherwise serve residents, public amenities, or green areas. The automated parking system at 1900 Broadway offers one example of how these challenges can be addressed. The Utron Pace system, a "shuttle/rack & rail" solution, stores vehicles on two levels with up to four-deep parking. Three entry/exit bays, three car lifts, and two shuttle systems efficiently deliver vehicles, while an integrated EV-charging robot allows users to plug in at the bay and have their car automatically guided to a charging station. App-based controls let users track vehicle status, manage charging, and retrieve cars remotely, without attendants, while ensuring vehicles are delivered without delay and ready to drive.
By condensing 100 parking spaces into just two levels, automated parking systems like Utron's free up space, turning garages into more than just storage for cars. At 1900 Broadway, that reclaimed floor is now used for shared amenities, such as lounges, coworking areas, fitness spaces, and elevated views, showing how thoughtful design and technology can make parking a productive part of a building rather than a constraint.
Such solutions are increasingly necessary in cities worldwide where private vehicle ownership remains high or continues to rise even as demand for green and walkable urban spaces grows. In the United States, for example, more than 90% of households own a vehicle, and registrations increased roughly 3.5% between 2018 and 2022, demonstrating that even as cities evolve toward denser, mixed-use development, parking is an important consideration.


The broader implications for urban planning are clear. By reducing the footprint of parking, cities and developers can reclaim space for housing, public amenities, or green infrastructure, allowing buildings and neighborhoods to feel denser yet more open. Thoughtful integration of automated parking shows how infrastructure, once purely functional, can contribute to the spatial and social quality of a project.
In an era of rapid urban growth—when projections suggest that global building floor area could double by 2060—intelligent systems like automated parking will increasingly shape how cities are planned, designed, and lived in. Solutions like those at Oakland's 1900 Broadway tower demonstrate that with careful design and the right strategy, developers can meet today's challenges without compromise: space constraints, sustainability, and user expectations. With automated parking solutions, parking can move from a practical burden to an integral part of urban life, helping cities become more compact, walkable, and responsive to the people who inhabit them, designing cities that serve people, not just cars.












