
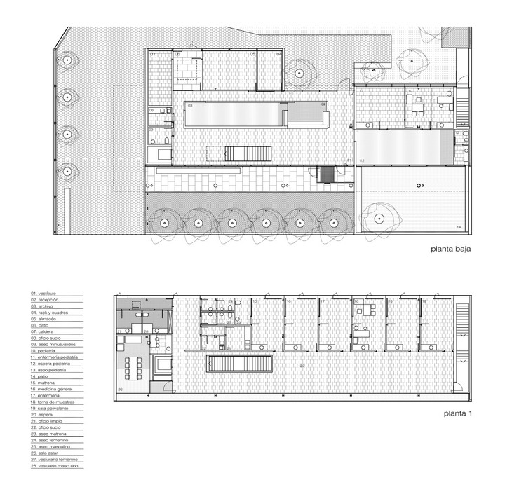
Architects: OAB
Location: Terrassa, Spain
Project Architects: Carlos Ferrater y Lucía Ferrater
Technical Architect: Enric Betlinski
Project Year: 2010
Photographs: Alejo Bagué

Architects: OAB
Location: Terrassa, Spain
Project Architects: Carlos Ferrater y Lucía Ferrater
Technical Architect: Enric Betlinski
Project Year: 2010
Photographs: Alejo Bagué

Architects: Moscato Schere Todo Terreno + MS + DPF UNLa Location: Buenos Aires, Argentina Designers: Agustin Moscato, Joaquín Moscato, Ramiro Schere Project Team: Lucia Hollman, Julián Puyal Project Year: 2012 Photographs: Manuel Ciarlotti

Architects: Rodrigo Piwonka Ariztía + Juan Luis Martínez Nahuel Location: Los Álamos, Santo Domingo, V Región, Chile Authors: Rodrigo Piwonka Ariztía, Juan Luis Martínez Nahuel Project Year: 2011 Photographs: Rodrigo Piwonka

Architects: Burgos & Garrido arquitectos Location: Albacete, Spain Architects: Francisco Burgos & Ginés Garrido / BGAA Collaborators: Javier Malo, Myriam López, Agustín Martín, Elena de las Moras Project Year: 2007 Project Area: 7,254.85 sqm Photographs: Ángel Baltanás

Architects: Burgos & Garrido arquitectos Location: Paseo de la Cuba, Albacete, Spain Architects: Francisco Burgos & Ginés Garrido / BGAA Collaborators: Agustín Martín, María José Arquero, Pierre Banchet, Carlos Carnicer, Myriam López-Rodero, Javier Malo de Molina, Elena de las Moras, Emilio Ontiveros, Pilar Recio, Marta Rogado Project Year: 2010 Project Area: 9.778,25 sqm Photographs: Ángel Baltanás

Architects: Nicolás del Rio / Max Núñez Location: Las Condes, Santiago Metropolitan Region, Chile Architects: Nicolás del Rio, Max Núñez Associate Architect: Felipe Camus Project Year: 2010 Photographs: Erieta Attali

Architects: Burgos & Garrido arquitectos Location: Lozoya, Spain Architects: Burgos & Garrido Arquitectos, Alberto Pieltain, Justo Fernández-Trapa Collaborators: Saúl García, Javier Malo, Agustín Martín Project Year: 2010 Photographs: Ángel Baltanás

Architects: rzlbd Location: Toronto, Ontario, Canada Project Team: Reza Aliabadi, Ladan Niknam, Lailee Soleimani Project Manager: Amin Sheivari Project Year: 2012 Photographs: Courtesy of Atelier rzlbd

Architects: Sergi Pons Architecte + Paul Vidal + Ricard Galiana Location: Barcelona, Spain Project Year: 2011 Photographs: Adrià Goula

Architects: Thomas Balsley Associates with Jim McKnight Location: Cleveland, OH, USA Project Year: 2012 Photographs: Scott Pease

Architects: Khosla Associates Location: Hyderabad, Andhra Pradesh, India Design Team: Sandeep Khosla, Amaresh Anand, Praveena A. and Aditi S Photographs: Bharath Ramamrutham

Architects: Manuel Vázquez Muíño Location: Carballedo, Galicia, Spain Architect: Manuel Vázquez Muíño Technical Architect: Visitación Mouzo Souto Project Year: 2010 Photographs: Santos-Díez

Architects: gmp Architekten Location: Frankfurt, Germany Design: Meinhard von Gerkan and Jürgen Hillmer Design Team: Klaus Lenz, Sebastian Flatau, Ingo Beckmann, Kai Beckmann, Markus Carlsen, Christian Dahle, Henning Fritsch, Ben Joscha Grope, Markus Helmin, Matthias Holtschmidt, Silke Jessen, Eduard Kaiser, Raimund Kinski, Prisca Marschner, Rouven Oberdieck Project Leaders Susanne: Winter, Reiner Schröder Project Year: 2012 Photographs: Marcus Bredt

Architects: NL Architects Location: Arnhem, The Netherlands Project Architects: Guus Peters and Bart Schoonderbeek (Schipper Bosch) Design Team: Pieter Bannenberg, Walter van Dijk, Kamiel Klaasse Team Members: Lorena Valero Miñano, Inés Quinteiro Antolín, Jaewoo Chon Project Year: 2011 Photographs: Jeroen Musch

Architects: Arhitektonski studio Fabijanić Location: Selve, Zadarsko-Kninska, Croatia Author: Nenad Fabijanić Co Author: Željko Pavlović Project Year: 2012 Project Area: 133 sqm Photographs: Miro Martinić

Architects: Tectoniques Architects Location: Nimes, France Associated Architects: Atelier GA Photographs: Jerome Ricolleau

Architects: SPACE Location: Pedregal, Mexico City, Mexico Chief Designer: Juan Carlos Baumgartner, Jimena Fernández Navarra Design Team: Sergio Gaytán, Ana Mallón Project Year: 2011 Photographs: Pim Schalkwijk

Architects: Budapesti Műhely Location: Sóskút, Hungary Architect In Charge: Tamás Dévényi, Budapesti Műhely Associate Architects: István Kovács, Eszter Mihály, Orsolya Takács, Viktor Vadász Project Year: 2011 Photographs: Tamas Bujnovszky