
-
Architects: LUO studio
- Area: 479 m²
- Year: 2021
-
Photographs:Weiqi Jin

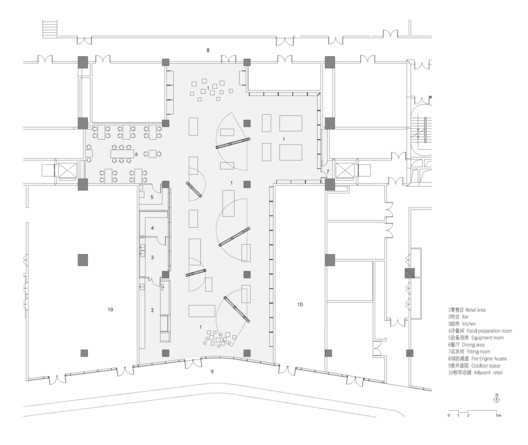
Text description provided by the architects. LUO studio recently conceived a distinctive bookstore in the underground space of a shopping mall in Beijing.
Due to different area requirements of various tenants that could occupy the space in the future, the space of the large commercial building was divided unevenly, and the walls and columns were separated and arranged disorderly. The mall hoped to maximize the potential of the underground space, where equipment rooms were set. The equipment space was dominated by intricately mounted and dense pipelines, which posed a great challenge to the design. For spatial renovation, bringing in a conventional suspended ceiling to conceal the pipelines would lead to a more cramped, oppressive space. Therefore, the design started from the idea of presenting the authenticity of the space without adding wrapping elements to original spatial structures.



























