Ling Institute / Isay Weinfeld

Ling Institute  / Isay Weinfeld - Image 2 of 12Ling Institute  / Isay Weinfeld - Image 3 of 12Ling Institute  / Isay Weinfeld - Image 4 of 12Ling Institute  / Isay Weinfeld - Image 5 of 12Ling Institute  / Isay Weinfeld - More Images+ 7

Porto Alegre, Brazil
  • Architects: Isay Weinfeld
  • Area Area of this architecture project Area:  3291
  • Year Completion year of this architecture project Year:  2014
  • Manufacturers Brands with products used in this architecture project
    Manufacturers:  panoramah!®, Bobrik, Cecrisa, Deca, Gail, OWA, Plaka
  • Category: Institute
  • Project Manager: Monica Cappa Santoni
  • Design Team: Sebastian Murr, Alexandre Nobre, Cristiano Kato, Carolina Miranda, Danilo Zamboni, Lucas Jimeno
  • Collaborators : Domingos Pascali, Marcelo Alvarenga
  • General Contractor: Capitânia
  • Structural Engineering: Benedictis Engenharia
  • Foundation Engineering: Milititsky Consultoria Geotécnica
  • Electrical And Plumbing Engineering: CM Engenharia
  • Air Conditioning: Engemestra Engenharia Mecânica
  • Bar / Kitchen Facilities: Marcelo Jacobi
  • Acoustic Consultant: Atelier Sul Acústica E Arquitetura
  • City: Porto Alegre
  • Country: Brazil
More SpecsLess Specs
Ling Institute  / Isay Weinfeld - Image 7 of 12

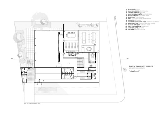
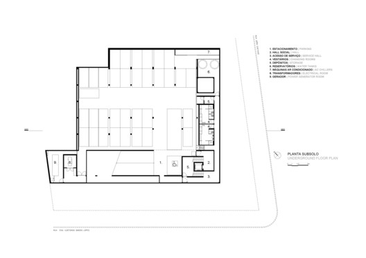
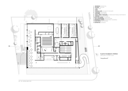
Text description provided by the architects. Ling Institute building, located at a corner in the neighborhood of Três Figueiras, in Porto Alegre, is a volume that, seen from the street, is low and slightly raised from the soil, as an object hovering amidst the garden.

Content Loader

Project gallery

See allShow less
About this office
Cite: "Ling Institute / Isay Weinfeld" [Instituto Ling / Isay Weinfeld] 11 Jul 2017. ArchDaily. Accessed . <https://www.archdaily.com/875494/ling-institute-isay-weinfeld> ISSN 0719-8884

You've started following your first account!

Did you know?

You'll now receive updates based on what you follow! Personalize your stream and start following your favorite authors, offices and users.