
-
Architects: Craft Design
- Area: 56 m²
- Year: 2013
- Photographs: Armando Elias
-
Manufacturers: Louis Poulsen

Text description provided by the architects. London based Studio Craft Design led by Hugo D'Enjoy and Armando Elias has transformed a Loft Space in Camden into a bright and dynamic living-working space.

Originally used as an open plan office space, the challenge was to convert the property into a bespoke and innovative environment that efficiently and creatively responds to the demands of living in London.

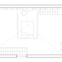
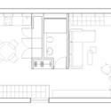
In response to the brief, the idea was to maximize the sense of space as well as keeping a simple and efficient layout. The solution successfully achieved this with the introduction of a single volume located central to the loft where all the services are accommodated. Detached from the facades and ceilings this element has divided the open plan into several spaces for different uses such as Kitchen-Dinning, Living Room, Storage, Bathroom and a Mezzanine for the sleeping and working area.

The 4.5 m height party wall and roof eaves have been fully used with shelves and storage, which serve the whole space. The stair to access the mezzanine level was cleverly integrated into this single piece of furniture. The rest was about keeping a simple palette in terms of materials and colors to allow the owner collection of objects, art and books give the wall an authentic personality to the space.
