
-
Architects: Atelier van Berlo, Ector Hoogstad Architecten
- Area: 11700 m²
- Year: 2025
-
Photographs:Marcel van der Burg
-
Manufacturers: Drystack

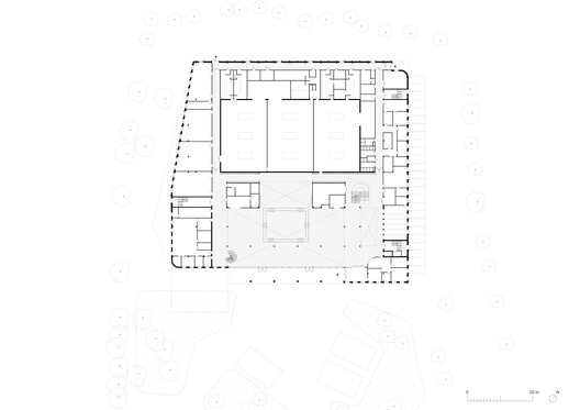
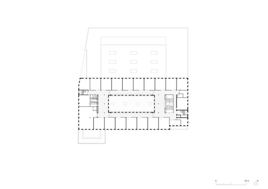
Text description provided by the architects. Atelier van Berlo and Ector Hoogstad Architecten designed Het Streek Lyceum in Ede. The new building redefines the secondary school as a social and spatial heart for both students and the wider community. Designed by Atelier van Berlo and Ector Hoogstad Architecten, the building fosters encounters, vitality, and a sense of belonging within a compact and circular design.



























