
-
Architects: Pineda Monedero
- Area: 150 m²
- Year: 2024
-
Photographs:Del Rio Bani
-
Manufacturers: Viabizzuno
-
Lead Architects: Alex Pineda, Antón Monedero, Jaime Prous Architects

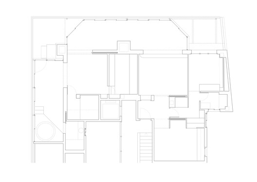
The housing is located on the top floor of a building from the 1970s. Like most penthouses in the city, it is a residual space despite being the most coveted apartment. By retracting the facade, the unit is positioned above the secondary spaces of the lower floors, with narrow frames and numerous obstacles such as downspouts or ventilation ducts. The goal is to camouflage these defects and through a process of subtraction, leave its structure exposed. Three main spaces are created beneath the original layout.

















