
-
Architects: Roadhouse Architects
- Area: 125000 ft²
- Year: 2024
-
Photographs:Ranjan Prabhakar
-
Manufacturers: Havells, Jaquar, meghalite
-
Lead Architects: Ranjan Prabhakar

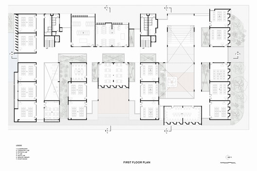
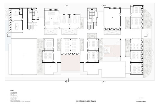
Text description provided by the architects. When one thinks of a school, an immediate picture of a space brimming with energy and life is conjured in the mind. Rows of classrooms stacked one atop the other, with long endless corridors, is a bygone. A school is a space to nurture, to encourage curiosity and child-like wonder, and a space that is safe both physically and psychologically. The idea is not to be constrained in one space and be made to listen but rather to encourage freedom and playfulness.
































