
-
Architects: mehr* architekten
- Area: 665 m²
- Year: 2021
-
Photographs:Sebastian Schels

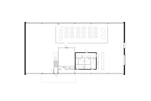
Text description provided by the architects. The brewery hall for the start-up "Braurevolution" is being built on the long side of a plot on which there are already several utility and residential buildings. The elongated structure closes off the existing courtyard to the north and leaves space for a small beer garden facing the street.






















