Reconstruction of Yanjiao Campus Library of Central Academy of Fine Arts / 3andwich Design / He Wei Studio

Reconstruction of Yanjiao Campus Library of Central Academy of Fine Arts  / 3andwich Design / He Wei Studio - Interior Photography, FacadeReconstruction of Yanjiao Campus Library of Central Academy of Fine Arts  / 3andwich Design / He Wei Studio - Interior Photography, GlassReconstruction of Yanjiao Campus Library of Central Academy of Fine Arts  / 3andwich Design / He Wei Studio - Interior PhotographyReconstruction of Yanjiao Campus Library of Central Academy of Fine Arts  / 3andwich Design / He Wei Studio - Interior PhotographyReconstruction of Yanjiao Campus Library of Central Academy of Fine Arts  / 3andwich Design / He Wei Studio - More Images+ 21

Langfang, China
  • Category: Library, Renovation
  • Design Team: Long Chen, Xiaoying Hua, Wanting Li, Xingyi Shen(Intern), Ran Ji(Intern)
  • General Director Of Detailed Design: Yan Sun
  • Interior Design: Guohui Ma
  • Structure Design: Shen Guo
  • HVAC: Yimei Chen
  • Electrical Engineering: Ke Ning
  • Owner: Yanjiao Campus Library of China Central Academy of Fine Arts
  • Construction Drawing Design: China Academy of Building Research
  • City: Langfang
  • Country: China
More SpecsLess Specs
Reconstruction of Yanjiao Campus Library of Central Academy of Fine Arts  / 3andwich Design / He Wei Studio - Exterior Photography, Facade
the orange ground indicates the location of the entrance. Image © Weiqi Jin

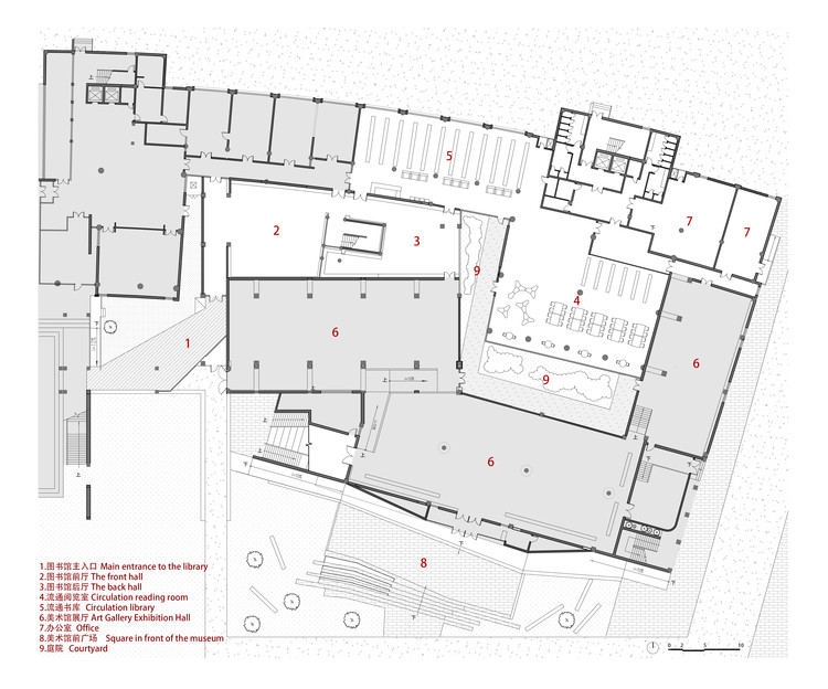
Task and design concept: Four-in-One with "collection, exhibition, reading, and enjoyment." After on-site investigation, the architect put forward the idea of planning and transforming the library and the adjacent art gallery together, that is, the library and the exhibition hall should be considered as a whole, and jointly serve as the base of knowledge and art production for the future of the academy, also with the four-in-one concept of "collection, exhibition, reading, and enjoyment". The so-called "collection" means here mainly books collecting. As a base of knowledge production, books are knowledge and the basis of all extended functions. Therefore, the new library must provide the best conditions for the collection of books. "Exhibition" means both presenting and exhibiting. Whether it is the library's books or the exhibition hall, the new space should have enough openness and tolerance to carry different forms of display and exhibition. “Reading” means books reading, one of the most basic functional requirements of the library. The design hopes to provide teachers and students with a more spacious and comfortable reading space and a more diversified reading experience. "Enjoyment" means both enjoying and sharing. In the view of the architect, the new library should be a space that readers are willing to enter. It should not be rigid, where readers can even read books lying down. At the same time, the library should be open and public. It can not only be linked with the exhibition hall to hold related extended reading events next to the exhibitions but also be used as a special classroom, seminar room or lecture hall.

Content Loader

Project gallery

See allShow less
About this office
Cite: "Reconstruction of Yanjiao Campus Library of Central Academy of Fine Arts / 3andwich Design / He Wei Studio" 02 Jul 2021. ArchDaily. Accessed . <https://www.archdaily.com/963403/reconstruction-of-yanjiao-campus-library-of-central-academy-of-fine-arts-3andwich-design-he-wei-studio> ISSN 0719-8884

New entrance to the library. Image © Weiqi Jin

中央美术学院燕郊校区图书馆改造 / 三文建筑 / 何崴工作室

You've started following your first account!

Did you know?

You'll now receive updates based on what you follow! Personalize your stream and start following your favorite authors, offices and users.