
-
Architects: NatureHumaine
- Year: 2020
-
Photographs:Adrien Williams

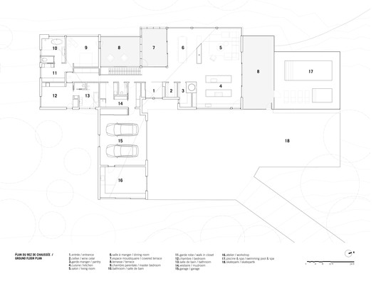
Text description provided by the architects. The project is located on a steep lot on the shores of Lake Memphremagog, not far from the Benedictine monks' abbey in St-Benoit-du-Lac. The clients wish to create on this large wooded lot, a living space that reflects their image: dynamic, welcoming, and friendly. They see their home as a contemporary and warm place for meetings with friends.






































