
-
Architects: Ruiz Larrea y Asociados
- Area: 15973 m²
- Year: 2020
-
Photographs:Lucía Gorostegui
-
Manufacturers: Gradhermetic, Hulk, Rockwool Peninsular S.A.U., Siber
-
Lead Architect: Antonio Gómez (RLA Partner, Director de Diseño, Passivehaus Tradeperson & Certifier)

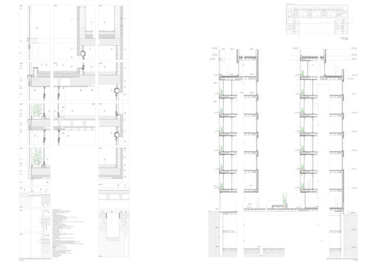
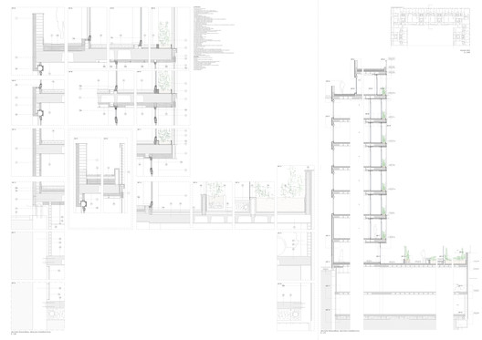
Text description provided by the architects. The project responds to the challenge "Madrid 0.0", launched by Solvia and the College of Architects of Madrid. 98 apartments designed for minimal energy demand and maximum comfort for users, understanding and the consequent evolution of a low-energy housing, in which the predominant idea is "My building is my home, and each housing a necessity. "







































