
-
Architects: KAAN Architecten
- Area: 17200 m²
- Year: 2019
-
Photographs:Sebastian van Damme
-
Manufacturers: Atlas Schindler, Art Co Parquet, Atlantic Sol

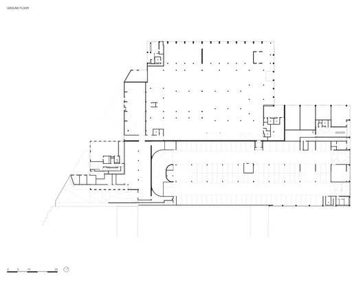
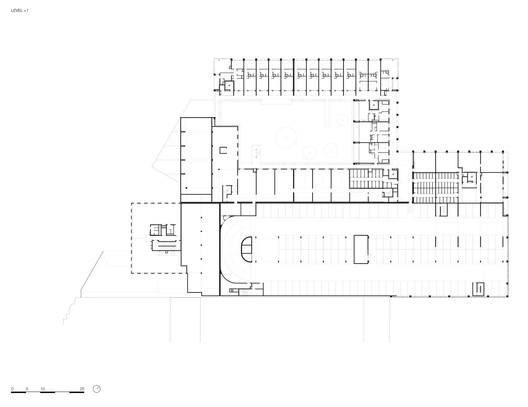
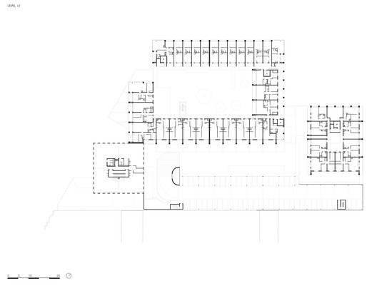
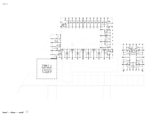
Text description provided by the architects. Encircled by existing infrastructures such as a tramway, an old railway line and the major artery of Route de Sainte Luce, the site initially appears isolated from its surroundings. By proposing a balanced composition of volumes and bringing together mixed-use programmes and public spaces, KAAN Architecten creates a second urban focal point, along with the Place du Commandant Cousteau, in a mainly residential neighbourhood.









































