
-
Architects: Fougeron Architecture, OMA
- Area: 906470 ft²
-
Photographs:Bruce Damonte
_The_Avery.jpg?1597177785)
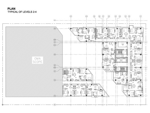
Text description provided by the architects. Related California, the West Coast affiliate of the nation’s largest privately-owned real estate firm, Related Companies, announces the completion of the penthouse and amenities of its highly anticipated residential high-rise, The Avery. Located in the heart of San Francisco’s newly emerged Transbay District, the tower is designed by OMA in collaboration with New York firm Clodagh Design (tower interior), Fougeron Architecture (podium architects), HKS (architect of record) and Jay Jeffers (penthouse interior).
















_The_Avery.jpg?1597177746)
_The_Avery.jpg?1597178101)
_The_Avery.jpg?1597178122)
_The_Avery.jpg?1597178173)
_The_Avery.jpg?1597178361)
_The_Avery.jpg?1597178630)
_The_Avery.jpg?1597178583)
_The_Avery.jpg?1597178606)
_The_Avery.jpg?1597178510)
_The_Avery.jpg?1597178392)
_The_Avery.jpg?1597178460)
_The_Avery.jpg?1597178423)
_The_Avery.jpg?1597178537)
_The_Avery.jpg?1597178080)
_The_Avery.jpg?1597178199)
_The_Avery.jpg?1597178484)
_The_Avery.jpg?1597178560)
_The_Avery.jpg?1597178045)
_The_Avery.jpg?1597178263)
_The_Avery.jpg?1597178145)
_The_Avery.jpg?1597178325)
_The_Avery.jpg?1597177957)