
-
Architects: BUCK.STUDIO
- Area: 260 m²
- Year: 2018
-
Photographs:PION Basia Kuligowska, Przemysław Nieciecki
-
Manufacturers: FAMEG, Sopel lighting series

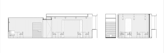
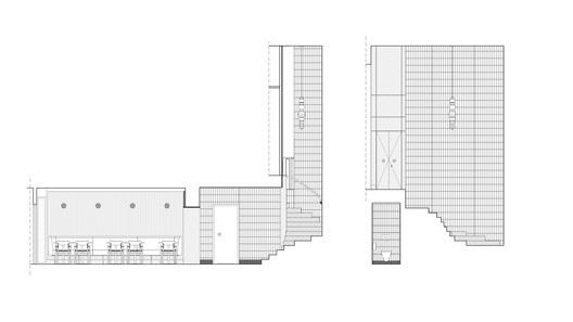
Text description provided by the architects. Right in the heart of Warsaw, on more than 260 square meters of a split level layout, the Opasly Tom (eng. Fat Volume) restaurant serves contemporary Polish cuisine in the suite of connecting rooms varying in scale. There is also a bar with reading room, a wine cellar and a semi-open fine dining kitchen. A creative menu embraces the concept of slow food, the principle of the season and the quality produce of Polish regions.




























