Metalworkers’ Union Headquarters / Gustavo Penna Arquiteto e Associados

Metalworkers’ Union Headquarters / Gustavo Penna Arquiteto e Associados - Image 2 of 27Metalworkers’ Union Headquarters / Gustavo Penna Arquiteto e Associados - Image 3 of 27Metalworkers’ Union Headquarters / Gustavo Penna Arquiteto e Associados - Image 4 of 27Metalworkers’ Union Headquarters / Gustavo Penna Arquiteto e Associados - Image 5 of 27Metalworkers’ Union Headquarters / Gustavo Penna Arquiteto e Associados - More Images+ 22

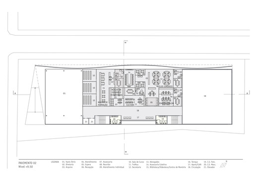
  • Area Area of this architecture project Area:  6855
  • Year Completion year of this architecture project Year:  2010
  • Photographs
    Photographs:Jomar Bragança
  • Manufacturers Brands with products used in this architecture project
    Manufacturers:  B&M Consultoria em Esquadrias, Isolar, Oppus Acústica, Protherm
  • Architects In Charge: Gustavo Penna, Ricardo Gomes Lopes, Norberto Bambozzi, Laura Penna, Priscila Dias de Araújo, Letícia de Paula Carneiro, Vivian Hunnicutt, Alyne Ferreira, Natália Ponciano, Catarina Hermanny
  • Landscape: Junia Lobo Paisagismo
  • Constructors: ENGECITY; EPO Engenharia
  • Management And Planning: Risia Botrel and Isabela Tolentino
  • Concrete / Metallic Structure / Foundation / Earthmoving: Montar Engenharia – Raul Newchwander
  • Electrical And Hydrosanitary Installations / Automation: Jorge Facury
  • Glasses: B&M Consultoria em Esquadria
  • Waterproofing: Isolar
  • Air Conditioning: Protherm
  • Acoustic: Oppus Acústica
  • Lightning Design: Arquitetura e Luz
  • City: Betim
  • Country: Brazil
More SpecsLess Specs
Metalworkers’ Union Headquarters / Gustavo Penna Arquiteto e Associados - Image 11 of 27
© Jomar Bragança

  

Content Loader

Project gallery

See allShow less
About this office
Cite: "Metalworkers’ Union Headquarters / Gustavo Penna Arquiteto e Associados" [Sede do Sindicato dos Metalúrgicos / Gustavo Penna Arquiteto e Associados] 28 Apr 2019. ArchDaily. Accessed . <https://www.archdaily.com/909953/metalworkers-union-headquarters-gustavo-penna-arquiteto-e-associados> ISSN 0719-8884

You've started following your first account!

Did you know?

You'll now receive updates based on what you follow! Personalize your stream and start following your favorite authors, offices and users.