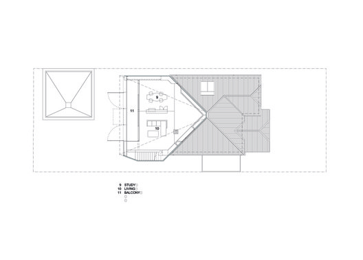
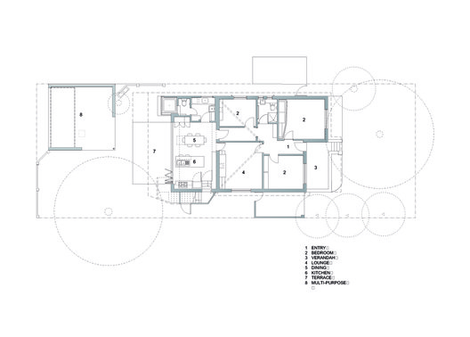
Casa 31_4 Room House / Caroline Di Costa Architect + Iredale Pedersen Hook Architects

Casa 31_4 Room House / Caroline Di Costa Architect + Iredale Pedersen Hook Architects - Image 2 of 47Casa 31_4 Room House / Caroline Di Costa Architect + Iredale Pedersen Hook Architects - Image 3 of 47Casa 31_4 Room House / Caroline Di Costa Architect + Iredale Pedersen Hook Architects - Sofa, Windows, BeamCasa 31_4 Room House / Caroline Di Costa Architect + Iredale Pedersen Hook Architects - Image 5 of 47Casa 31_4 Room House / Caroline Di Costa Architect + Iredale Pedersen Hook Architects - More Images+ 42

  • Category: Houses, Refurbishment
  • Proyect Team: Caroline Di Costa, Adrian Iredale, Finn Pedersen, Martyn Hook, Brett Mitchell, Sinan Pirie, Matthew Fletcher
  • Builder: Hugo Homes
  • City: Perth
  • Country: Australia
More SpecsLess Specs
Casa 31_4 Room House / Caroline Di Costa Architect + Iredale Pedersen Hook Architects - Windows, Fence, Facade
© Peter Bennetts

Content Loader

Project gallery

See allShow less
About this office
Cite: "Casa 31_4 Room House / Caroline Di Costa Architect + Iredale Pedersen Hook Architects" 07 Apr 2014. ArchDaily. Accessed . <https://www.archdaily.com/493491/casa31_4-room-house-caroline-di-costa-architect-iredale-pedersen-hook-architects> ISSN 0719-8884

You've started following your first account!

Did you know?

You'll now receive updates based on what you follow! Personalize your stream and start following your favorite authors, offices and users.