
-
Architects: Slade Architecture
- Area: 2790 m²
- Year: 2009
Text description provided by the architects. Activities (Fashion Runway and Barbie Design Center Activities):Chute Gerdeman
New York-based Slade Architecture has designed the first ever Barbie Flagship for Mattel. The 35,000 square foot store holds the world’s largest and most comprehensive collection of Barbie dolls and licensed Barbie products, as well as a range of services and activities for Barbie fans and their families.

Mattel wanted a store where “Barbie is hero”; expressing Barbie as a global lifestyle brand by building on the brand’s historical link to fashion. Barbie Shanghai is the first fully realized expression of this broader vision. Mattel worked with BIG, the branding and design division of Ogilvy & Mather, to develop creative concept, identify project location, explore featured activities and identify creative partners.

Slade Architecture led the design including the exterior, interior, fixtures, and furnishings. Slade’s design is a sleek, fun, unapologetically feminine interpretation of Barbie: past, present, and future.

For the new façade, Slade Architecture combined references to product packaging, decorative arts, fashion and architectural iconography to create a modern identity for the store, expressing Barbie’s cutting-edge fashion sense and history.

The façade is made of two layers: molded, translucent polycarbonate interior panels and flat exterior glass panels printed with a whimsical lattice frit pattern. Slade collaborated with designers at BIG, who created the final exterior frit graphics. The two layers reinforce each other visually and interact dynamically through reflection, shadow and distortion.

Visitors are enveloped by curvaceous, pearlescent surfaces of the lobby, leading to a pink escalator tube that takes them from the bustle of the street, to the double-height main floor.

The central feature is a three-story spiral staircase enclosed by eight hundred Barbie dolls. The staircase and the dolls are the core of the store; everything literally revolves around Barbie.
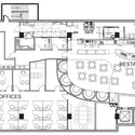
The women’s floor (women’s fashion, couture, cosmetics and accessories).

The doll floor (dolls, designer doll gallery, doll accessories, books). The Barbie Design Center, where girls design their own Barbie is on this floor. This activity was planned by Chute Gerdeman Retail and designed by Slade Architecture.

The girls floor (girls fashion, shoes and accessories). The Barbie Fashion Stage, planned and designed by Chute Gerdeman Retail, where girls take part in a real runway show, is also on this floor.

The Barbie Café, also designed by Slade Architecture, is on the top floor.

Throughout the retail areas, Slade played with the scale differences between dolls, girls and women. They reinforced the feeling of youth and the possibilities of an unapologetically girlish outlook (regardless of age) by mixing reality and fantasy and keeping play and fun at the forefront - to create a space where optimism and possibility reign supreme as expressions of core Barbie attributes.

