
-
Architects: L'Atelier Senzu, LAGNEAU Architectes
- Area: 2868 m²
- Year: 2025
-
Photographs:Cyrille Weiner, Rory Gardiner
-
Manufacturers: Saint-Gobain, Degaine et Mergozzo, MARAZZI, QUINTESSENZA CERAMICHE, vandaglas

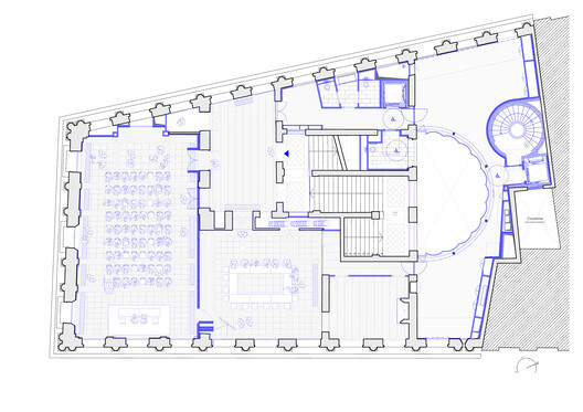
Text description provided by the architects. The renovation of the Chamber of Notaries is located in the 1st arrondissement of Paris. The project represents a thoughtful transformation of an existing structure, balancing the preservation of Parisian heritage with contemporary architectural interventions.










































