
-
Architects: Vessu Collaboration
- Area: 450 m²
- Year: 2025
-
Photographs:THANAWATCHU
-
Lead Architects: Pruek Lertsrimongkol

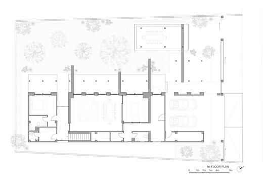
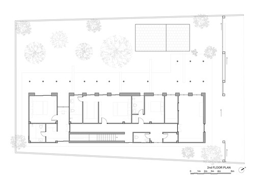
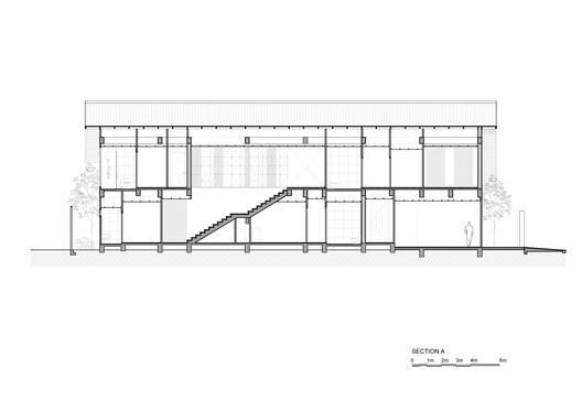
Text description provided by the architects. Verdure Villa sits quietly in the heart of busy Bangkok, surrounded by a dense concrete landscape yet intentionally crafted as a serene retreat where nature and spirit take precedence over the chaos of the city. The design began with a simple question: How can a family home in Bangkok feel like a sanctuary? This guiding idea shaped every move—from orientation to materiality—resulting in a house that offers greenery, calm, and moments of introspection within an otherwise intense urban setting.











































