Simone Veil School Complex Tremblay-en-France / Gaetan Le Penhuel Architectes

Simone Veil School Complex Tremblay-en-France / Gaetan Le Penhuel Architectes - Interior Photography, Kitchen, WoodSimone Veil School Complex Tremblay-en-France / Gaetan Le Penhuel Architectes - Interior PhotographySimone Veil School Complex Tremblay-en-France / Gaetan Le Penhuel Architectes - Exterior PhotographySimone Veil School Complex Tremblay-en-France / Gaetan Le Penhuel Architectes - Interior PhotographySimone Veil School Complex Tremblay-en-France / Gaetan Le Penhuel Architectes - More Images+ 46

Tremblay-en-France, France
  • Team Project: Warren Lepolard, Ersi Hoxha, Philippe Souaid
  • Client: City of Tremblay-en-France
  • Cost Consultant: BMF
  • Ergonomist: Ergo Zen
  • Acoustic Engineering Consultant: Impédance
  • Cuisiniste: Atec
  • Environmental Engineering Consultant: Emenda
  • City: Tremblay-en-France
  • Country: France
More SpecsLess Specs
Simone Veil School Complex Tremblay-en-France / Gaetan Le Penhuel Architectes - Image 6 of 51
© Vladimir de Mollerat du Jeu

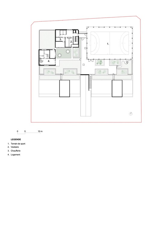
Text description provided by the architects. Gaëtan Le Penhuel Architectes & Associés has completed the Simone Veil school group in Tremblay-en-France (France). This facility embodies the firm's approach to sustainably transforming educational spaces in response to the climate emergency. This innovative project, which avoids standardization and reinterprets the concept of the "schoolhouse," won the Équerre d'argent 2025 Prize this November.

Content Loader

Project gallery

See allShow less
About this office
Cite: "Simone Veil School Complex Tremblay-en-France / Gaetan Le Penhuel Architectes" 18 Dec 2025. ArchDaily. Accessed . <https://www.archdaily.com/1037050/simone-veil-school-complex-tremblay-en-france-gaetan-le-penhuel-architectes> ISSN 0719-8884

You've started following your first account!

Did you know?

You'll now receive updates based on what you follow! Personalize your stream and start following your favorite authors, offices and users.