

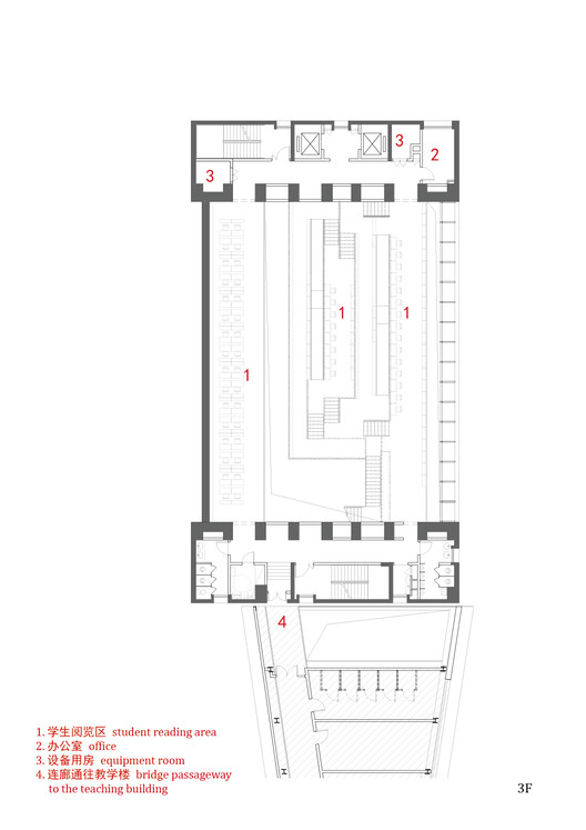
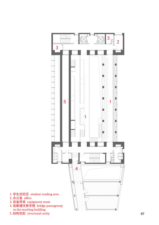
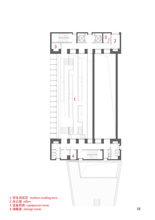
Creating a Vertical High-Density Campus - The Xiaozhuang Campus of the High School Affiliated to Nanjing Normal University (NSFZ) occupies a 66,700 sq.m site, with a total building area of approximately 95,000 sq.m. A further 17,000 sq.m of semi-outdoor space is not counted toward the floor area ratio. The campus is designed to accommodate 42 classes, forming a high-density, compact campus due to the limited land availability. At the center of the site, a heritage structure—the former Second Communication Station of the Republic of China Air Force is preserved, along with a high-rise dormitory built in recent years that awaits renovation.







































