
-
Architects: CCBA Designs
- Area: 28620 m²
- Year: 2013
-
Photographs:Ramprasad Naidu A, Deepak Kaw
-
Lead Architect: Prof. Christopher Benninger

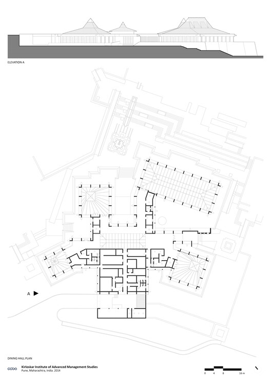
Text description provided by the architects. Located 30 kilometers from Pune at Dhamane, the site is nestled in the hilly backdrop of the Sahyadri mountain ranges. The solitary plot is a part of the rugged terrain at the foothills. The Kirloskar Corporate family aims to create a new set of enterprising managers for the country and hence promoted the Kirloskar Institute of Advanced Management Studies. The campus, apart from educating students to become future managers, also imparts training programs to mid and senior-level management personnel sponsored by industries.






















