Mexická Restaurant / 20-20 Architekti

Mexická Restaurant / 20-20 Architekti - Interior Photography, LightingMexická Restaurant / 20-20 Architekti - Image 3 of 36Mexická Restaurant / 20-20 Architekti - Interior Photography, Chair, Column, BeamMexická Restaurant / 20-20 Architekti - Interior Photography, Wood, Lighting, Glass, ChairMexická Restaurant / 20-20 Architekti - More Images+ 31

  • Architects: 20-20 Architekti
  • Area Area of this architecture project Area:  890
  • Year Completion year of this architecture project Year:  2025
  • Photographs
    Photographs:BoysPlayNice
  • Manufacturers Brands with products used in this architecture project
    Manufacturers:  Carl Stahl ARC, Cora Jičín, Cubis Metal, David Hřivňacký, Dřevona Lovčice, Gastroart, Krby Urban, Light Concept, Sochařská pohotovost, Teraco Lité
More SpecsLess Specs
Mexická Restaurant / 20-20 Architekti - Interior Photography, Wood, Lighting
© BoysPlayNice

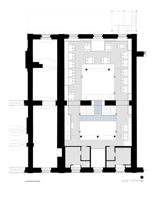
Text description provided by the architects. Project Mexická was initiated by the Together gastro alliance. Its co-owner, David Petřík, considers Asia, Italy, and Mexico to be the biggest players on the world gastronomic scene, so adding Mexico to their portfolio was only a matter of time. The investor's brief was to create a monumental space in Prague offering not only Central American cuisine, but also an experience of its culture as such. From the beginning, the main idea was to mix an open kitchen, large wood-fired ovens, and a noisy Mexican hacienda. Mexická was to become Together's largest venture.

Content Loader

Project gallery

See allShow less
About this office
Cite: "Mexická Restaurant / 20-20 Architekti" 26 Dec 2025. ArchDaily. Accessed . <https://www.archdaily.com/1036583/mexicka-restaurant-20-20-architekti> ISSN 0719-8884

© BoysPlayNice

Mexická 餐厅 / 20-20 Architekti

You've started following your first account!

Did you know?

You'll now receive updates based on what you follow! Personalize your stream and start following your favorite authors, offices and users.