
-
Architects: Metrics Architecture Studio
- Year: 2025
-
Photographs:Studio MAX

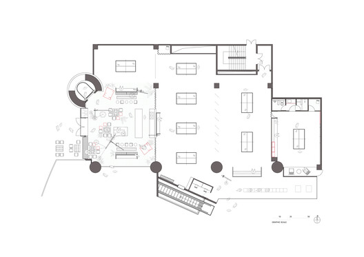
Text description provided by the architects. Nestled in the heart of Shanghai, this project reimagines a conventional mall space as a leisure table tennis gym. The design centers on the concept of "mixing patches," creating a dialogue between new and old, using these reclaimed elements as an aesthetic motif to craft a fresh identity for the popular sport.
























