
-
Architects: Boyd Architects
- Area: 2300 ft²
- Year: 2025
-
Photographs:Brennan Wesley Photography, Reagen Taylor Photography
-
Manufacturers: Fisher & Paykel, Emtek, Hartstone, Marvin , Phylrich, US Brick, Visual Comfort

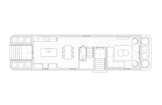
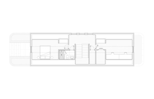
Text description provided by the architects. Radcliffe House is a single-family residence located in downtown Charleston's historic Radcliffeborough neighborhood. The 30'x100' non-conforming lot had been vacant since the late 1980s, when the original structure was destroyed in a fire.






























