
-
Architects: Studio Et al
- Area: 100 m²
- Year: 2024
-
Photographs:Willem Pab
-
Manufacturers: Oa Studio

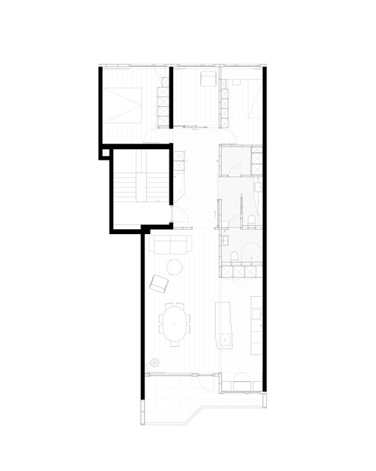
Text description provided by the architects. Total refurbishment of a 100 m² apartment in a functionalist apartment building on the outskirts of Oslo.























