
-
Architects: GGR architectes
- Area: 2934 m²
- Year: 2024
-
Photographs:Atelier Félix Faure
-
Manufacturers: Terreal, OXXO, Rekli, Weber
-
Lead Architects: GGR architectes

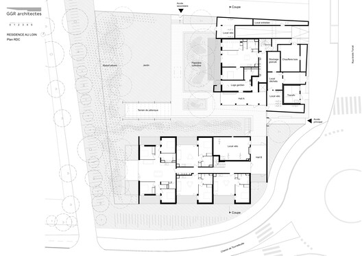
Text description provided by the architects. The residence Au Loin is part of a new development zone on the outskirts of Toulouse. It is intended to be representative of innovation in construction and the housing of tomorrow. However, it doesn't invent anything. It also does not revolutionize the way of living. The primary concern of the residence Au Loin is to offer a new landscape for each of its homes. To achieve this, it is shaped by simple siting principles and architectural choices that have stood the test of time. Reflecting the values of the GGR agency, the Au Loin project aims to be economical, sustainable, timeless, and human-centered. Because a city cannot be built solely on achievements. The project aims to take advantage of the landscape qualities of a complex urban context: a narrow corner plot, located on the edge of the main axis of a developing neighborhood and bordering a wooded area and a 'wild' stream. To achieve this, two buildings are constructed along the street to protect the common garden from road nuisances. A large building rises to the maximum permitted height to free up the ground and allow the inner courtyard to breathe. A smaller building is lowered to engage in dialogue with the neighboring residential fabric. The space between the two buildings forms the entrance to the residence. The void of the central garden connects with the void of the retention basin of the development zone, giving residents the impression that their common garden is immense.





































