
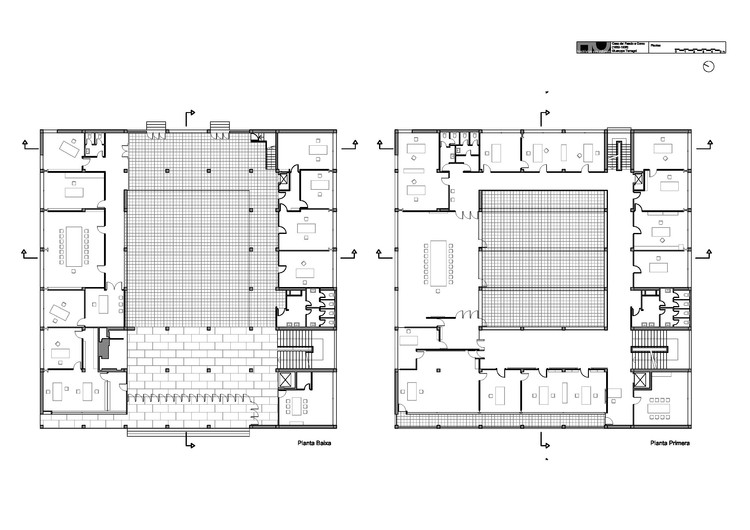
The Palazzo della Civiltà Italiana (also known as the 'Square Colosseum') is perhaps the most emblematic architectural project realised during Benito Mussolini's Fascist dictatorship, which governed Italy between 1922 and 1943. Now, sixty years later and having never been used, Italian fashion house Fendi and architect Marco Costanzi have—amid controversy—renovated the historically charged building into their headquarters, with office space to accommodate around 450 employees. Having reportedly signed a fifteen year lease with the municipality of Rome, the haute fashion house will be paying around €240,000 ($265,000) in annual rent.


