
-
Architects: ARCHISTRY Design & Research Office
- Area: 220 m²
- Year: 2018
-
Photographs:David Chu
-
Manufacturers: ARCHSILVER, CLI, ZEN WOOD

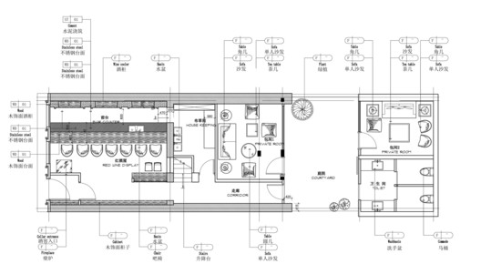
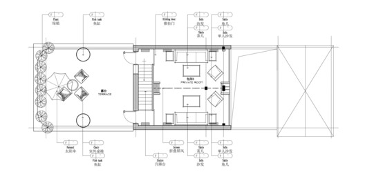
Text description provided by the architects. New and old, low-key and high-end, market and comfort, these three pairs of antagonistic words often appear in discussion of design life in old but fast-changing Beijing. It is nearly 100 years since the Republic of China this building has been standing in the ancient city area of Qianmen Dazhalan in the center of Beijing. This building has changed from a residential building to a spare parts factory, and then to a Mahjong chess and card room. After several transformations, it has changed several times. Now it will be protected and transformed into a speakeasy club.




































