
-
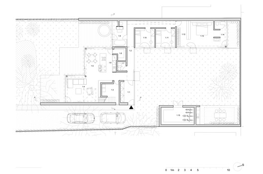
Architects: mackovič architecture
- Area: 154 m²
- Year: 2024
-
Photographs:Alexandra Timpau
-
Manufacturers: D-Smržovský, MASKOP 99, VRTAŇA -PODLAHY

Text description provided by the architects. Soft southern light and a carefully considered site form the foundation of a calm contemporary villa on the eastern edge of Prague, Czechia. Designed by Jan Mackovič of mackovič architecture, the project grew out of a precise reading of the site and an ambitious brief from a young family seeking spatial generosity within the constraints of a standard family-home budget.



















