
-
Architects: Jo Nagasaka, Schemata Architects
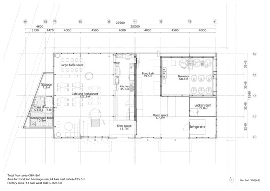
- Area: 365 m²
- Year: 2025
-
Photographs:Kenta Hasegawa (OFP)
-
Planting Design: Niwaco Design, Keisuke Sagara

Text description provided by the architects. Teshima Factory is a project that revitalised a former ironworks located in front of Ieura Port in Teshima Island as a cafeteria and food factory.


















































