Summer House in Klegod / Spant Studio

Summer House in Klegod / Spant Studio - Exterior PhotographySummer House in Klegod / Spant Studio - Interior Photography, Kitchen, WoodSummer House in Klegod / Spant Studio - Exterior Photography, WoodSummer House in Klegod / Spant Studio - Exterior PhotographySummer House in Klegod / Spant Studio - More Images+ 21

  • Architects: Spant Studio
  • Area Area of this architecture project Area:  102
  • Year Completion year of this architecture project Year:  2024
  • Photographs
  • Lead Architects: Troels Thorbjørnson, Kasper Baarup Holmboe
More SpecsLess Specs
Summer House in Klegod / Spant Studio - Exterior Photography
© Helene Høyer Mikkelsen

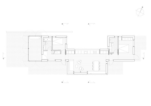
Text description provided by the architects. Conceived as a quiet, long-lasting refuge in the dunes, the Klegod Summer House is designed to make wind, light, and seasonal change part of everyday life. The house is located in the exposed coastal landscape of West Jutland near the North Sea, where strong winds and shifting weather are defining conditions. Commissioned by private clients as a retreat for a couple, while also serving as a place to gather their children and grandchildren, the brief called for a contemporary summer house with a calm atmosphere, durable materials, and a layout that could support both family gatherings and smaller stays throughout the year. A key constraint was to build with restraint: to preserve the existing vegetation and allow the building to settle into the landscape rather than reshape it.

Content Loader

Project gallery

See allShow less
About this office
Cite: "Summer House in Klegod / Spant Studio" 01 Jan 2026. ArchDaily. Accessed . <https://www.archdaily.com/1037437/summer-house-in-klegod-spant-studio> ISSN 0719-8884

You've started following your first account!

Did you know?

You'll now receive updates based on what you follow! Personalize your stream and start following your favorite authors, offices and users.