
-
Architects: Increments Studio, Practice on Earth
- Area: 290 m²
- Year: 2024
-
Photographs:Cloe Yun Wang

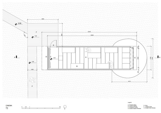
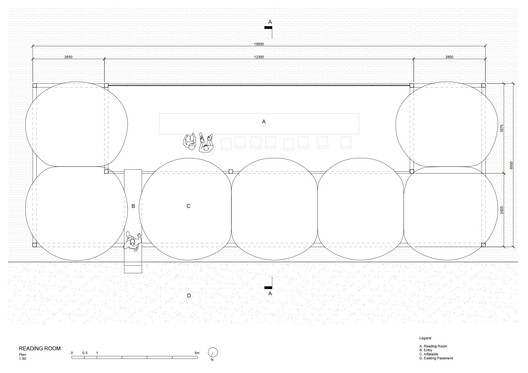
Text description provided by the architects. Dun'ao Village in Xiangshan, Ningbo, sits inland among low hills and rice fields. The project began with a desire to reflect the calm, poetic atmosphere of this secluded landscape. Instead of rigid architectural frameworks, we initiated the design with sketches and poems, aiming for lightness, openness, and play. We revitalized three abandoned utility structures using a combination of steel containers and inflatable forms. These prefabricated systems enabled rapid installation and allowed us to craft flexible, playful spatial experiences across three sites:


























