
-
Architects: Cote Architects
- Area: 300 m²
- Year: 2025
-
Photographs:HungHoa
-
Manufacturers: Eurotile, INAX, Kenwin
-
Lead Architects: Hoang Viet Hung

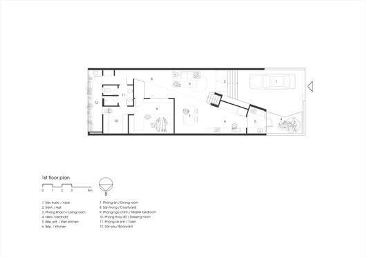
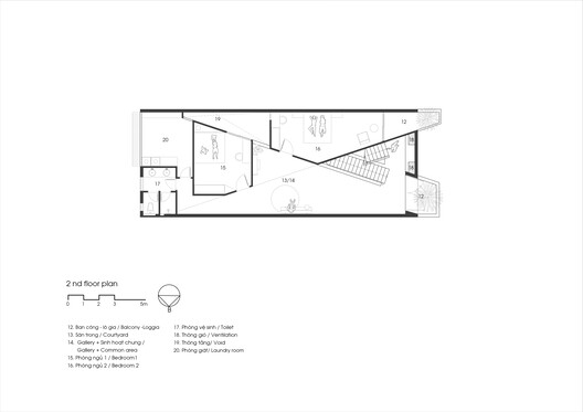
Text description provided by the architects. Located in the southern area of Vy Da Ward, Hue City, X House sits within a dense urban fabric surrounded by hotels, restaurants, event venues, and sports facilities. In contrast to its vibrant surroundings, the project was conceived as a calm and balanced living environment for a young family of four—prioritizing spatial stillness, minimalism, cost efficiency, and long-term sustainability. X House is envisioned as an architectural retreat, offering a moment of pause from the urban rhythm through light, space, and material restraint.
























































