
-
Architects: moss.
- Area: 318 m²
- Year: 2025
-
Photographs:Koji Fujii / TOREAL
-
Lead Architects: Takeshi Shima

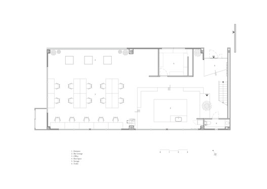
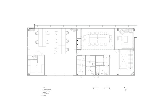
"A Space Where Precision and Trust Reside" An office for a company engaged in concrete investigation, surveying, and civil engineering design. The essence of work that demands precision and reliability is translated into space through three key concepts: Precision, Reliability, and Groundedness.

















