
-
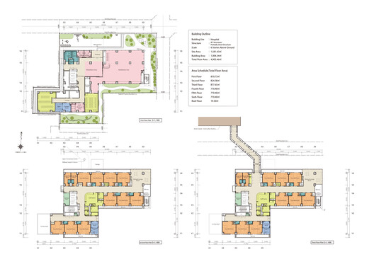
Architects: AIDAHO
- Area: 1005 m²
- Year: 2024
-
Photographs:Takumi Ota Photography Co., Ltd.
-
Manufacturers: Asahi Kasei Construction Materials, Dainichi Giken Kogyo, PORTERS PAINTS, Sato Watanabe, TAJIMA ROOFING
-
Lead Architects: Jun Sawada, Kazuhiro Naganuma

Text description provided by the architects. Asoka Hospital South Wing is a pioneering "Architecture of Regeneration" in Tokyo that translates the traditional Japanese art of Kintsugi into a healing environment, mending the connection between patients and their daily lives.






























