
-
Architects: pfeffermint AG
-
Photographs:Markus Edgar Ruf

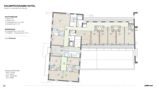
Text description provided by the architects. pfeffermint AG realized the conversion and refurbishment of the Landgasthof Riehen with the utmost care. The aim was to create a place that combines tradition, modern comfort and an artistic ambience in a unique way. The formerly somewhat outdated building was brought up to date with a carefully crafted interior design. Timeless elegance meets beautiful details that preserve the character of the hotel while giving it a modern interpretation.






















