
-
Architects: AEV Architectures, TONN architects
- Area: 95 m²
- Year: 2025
-
Photographs:WooJung Park

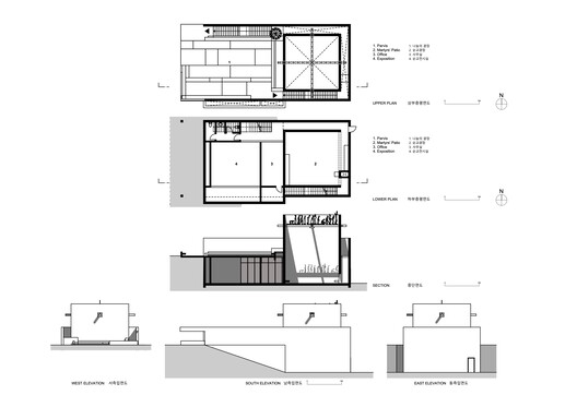
Text description provided by the architects. A Place of Memory and Reconciliation Created by Light
In the tranquil village of Mangyeong, located three hours south of Seoul, a deeply meaningful commemorative space has been established. This memorial honors Pastor Kim Jong-han and the fifteen members of the Mangyeong Church who were martyred during the Korean War in 1950. The Mangyeong Church Martyrs Memorial is designed, not as a conventional monument, but as a powerful symbol of remembrance, renewal, and hope for a rural community grappling with depopulation and the erosion of its cultural identity.



























