
-
Architects: ARO studio
- Area: 1000 ft²
- Year: 2025
-
Photographs:Hoang Le
-
Manufacturers: Rolandoor Glass
-
Lead Architects: Dang Minh Trong, Tan Nguyen, Duc Nguyen, Minh Nguyen

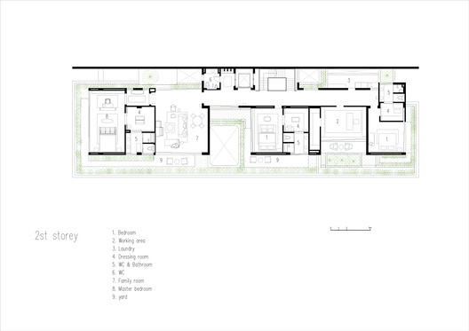
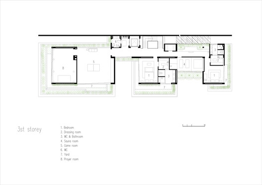
Text description provided by the architects. Tropical House 2 is conceived as a vertical village for an extended family, where architecture, greenery, and shared domestic life are interwoven into a living ecosystem that responds to the tropical climate.




























