
-
Architects: Peninsula Arquitetura
- Area: 280 m²
- Year: 2025
-
Photographs:Maira Acayaba
-
Manufacturers: GRAPHISOFT, Assoalhos Murata, Casa Franceza, Fernando Jaeger, Marcenaria da Fazenda
-
Lead Architects: Gabriel Cesar e Santos, José Guilherme Carceles, Eugenio Amodio Conte

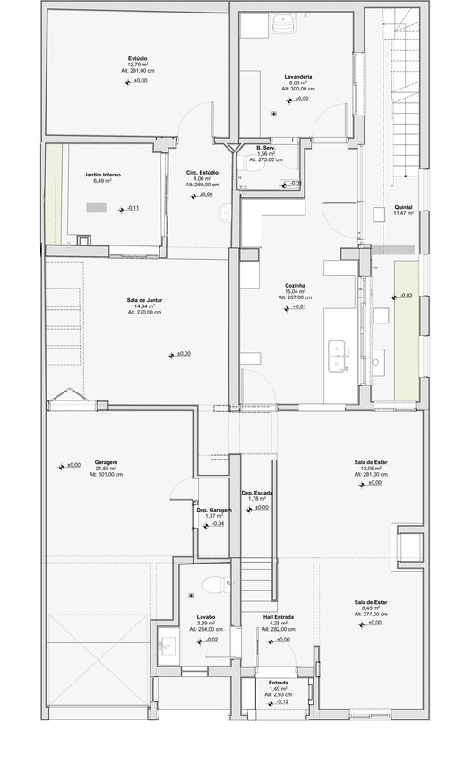
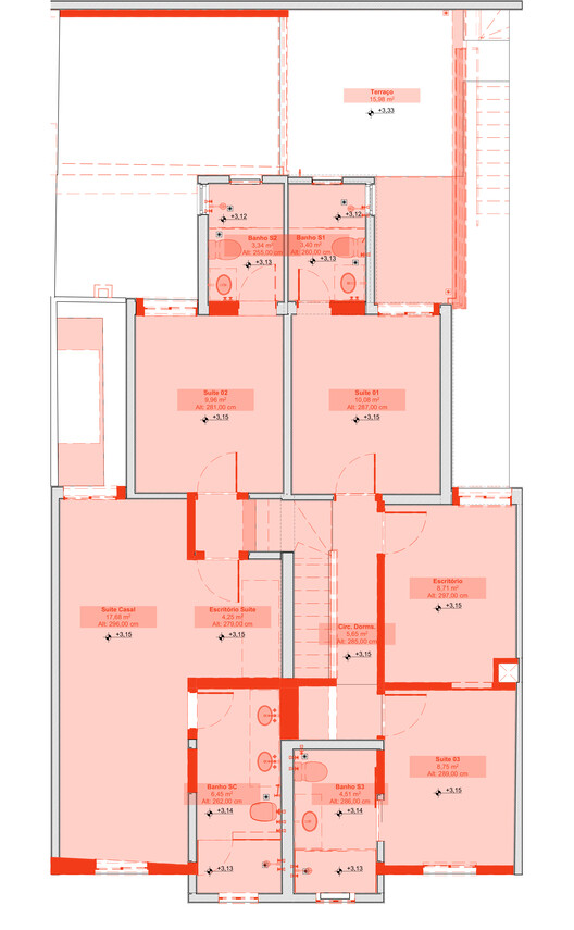
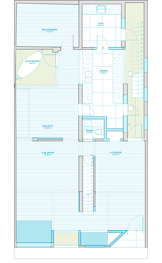
Text description provided by the architects. Upon taking on the project and construction of the Village House, we encountered a building formed by the joining of two semi-detached houses, "regularized" by a superficial intervention that did not address the essential issues of the space. The initial diagnosis revealed a fragmented configuration, with compartments lacking a clear purpose, underutilized areas, and a staircase adapted to reach the upper floor, highlighting the lack of continuity between the parts. There were overlapping uses, unclear passages, and timid natural light that entered, unable to structure daily life. Our starting point was to restore logic and meaning to the whole, transforming two disconnected halves into a single organism.
























