
-
Architects: ABF - LAB
- Area: 2450 m²
- Year: 2025
-
Photographs:ABF - LAB, Ivan Mathie
-
Lead Architects: Paul Azzopardi and Etienne Feher

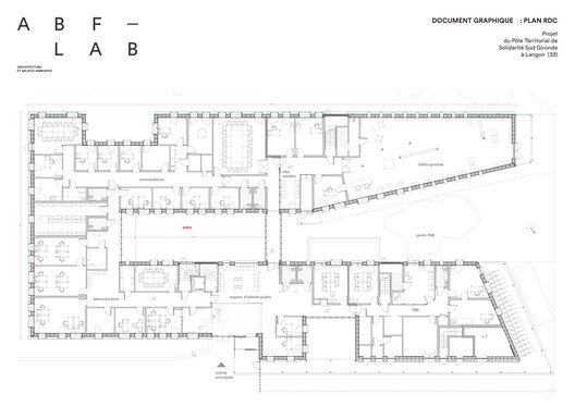
Text description provided by the architects. Designed to respond to the crucial challenges of the environment, energy, climate, and health, the Maison des solidarité du Département in Langon (Gironde) completed by ABF-LAB, is based on a radical environmental scenario where bioclimatism, passive systems, and total use of natural materials are combined to implement a new construction approach.
















