
-
Architects: Barthélémy Griño Architectes
- Area: 2770 m²
- Year: 2025
-
Photographs:Schnepp Renou

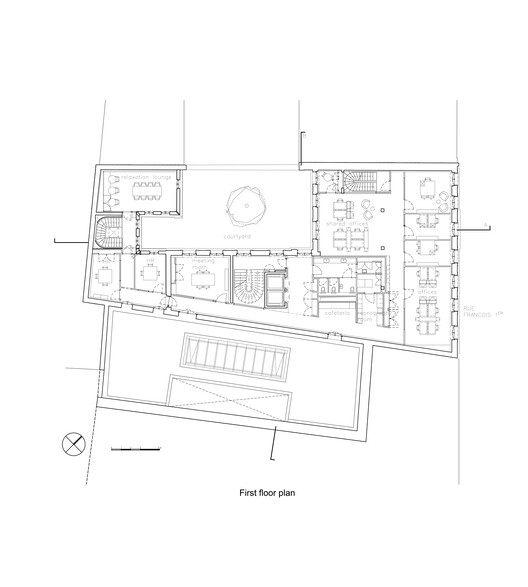
Text description provided by the architects. Barthélémy Griño unveils its new refurbishment in the heart of the Parisian Triangle d'Or. Strategically located on rue François Ier in the 8th arrondissement, close to the vibrant Avenue Montaigne, the site needed a major renovation. Drawing on its expertise in restructuring historical sites, the agency made the most of the existing built heritage and the urban context to create a contemporary project that meets the highest functional standards.





























