
-
Architects: Vari Architects
- Area: 110 m²
- Year: 2025
-
Photographs:Qingbo Wu
-
Manufacturers: / (Removed)
-
Lead Architects: Qi Fan

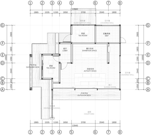
Text description provided by the architects. In the dense crevices of this mountain city, there exists a natural oasis that holds the city's peace and stillness. This time, continuing the Natural Tectonic approach, we shaped a breathing teahouse among the wooded slopes—embedding a Scandinavian rationality and warmth into the urban fabric, and through it, attempting to reweave the relationship between humans, nature, and the modern metropolis.






























