Borová Lada Cottage / Studio Plyš

Borová Lada Cottage / Studio Plyš - Interior Photography, Living Room, Wood, LightingBorová Lada Cottage / Studio Plyš - Interior Photography, Bedroom, Wood, Bed, LightingBorová Lada Cottage / Studio Plyš - Image 4 of 38Borová Lada Cottage / Studio Plyš - Interior Photography, KitchenBorová Lada Cottage / Studio Plyš - More Images+ 33

Borová Lada, Czechia
  • Architects: Studio Plyš
  • Area Area of this architecture project Area:  333
  • Year Completion year of this architecture project Year:  2024
  • Photographs
    Photographs:Tomáš Slavík
  • Manufacturers Brands with products used in this architecture project
    Manufacturers:  Swisspearl, Duravit, Grohe, M&T, TON, Artemide, SMEG, Artemide, Berker, Blum, Franke, HOTHOT Exclusive, HOTHOT Exclusive, Kare Design, MARAZZI, MASKOP99, Marset, NOVA LUCE, Němec, PREFA, +5
  • Category: Houses, Renovation
  • Author: Lenka Vávra, Petr Vávra
  • Co Author: Kateřina Vávrová
  • Floors: Němec
  • Custom Made Furniture: Truhlářství Kadlec
  • City: Borová Lada
  • Country: Czechia
More SpecsLess Specs
Borová Lada Cottage / Studio Plyš - Exterior Photography
© Tomáš Slavík

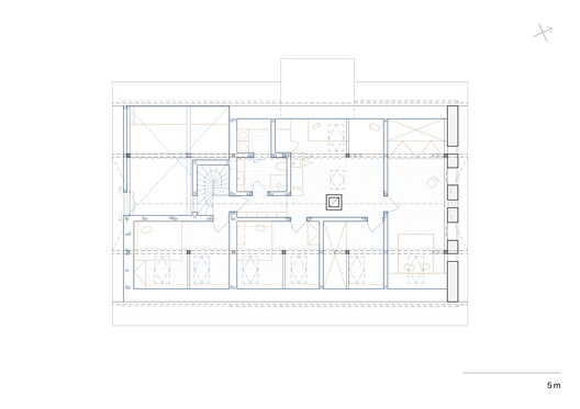
Text description provided by the architects. Beyond the village, along a road leading deeper into the majestic Bohemian Forest, stands a late 19th-century cottage. We propose a renovation that emphasises the joy of living in a house that has survived throughout and despite changing times. A house that is considerate of its surroundings rather than a loud neighbour.

Content Loader

Project gallery

See allShow less
About this office
Cite: "Borová Lada Cottage / Studio Plyš" 12 Dec 2025. ArchDaily. Accessed . <https://www.archdaily.com/1036885/borova-lada-cottage-studio-plys> ISSN 0719-8884

You've started following your first account!

Did you know?

You'll now receive updates based on what you follow! Personalize your stream and start following your favorite authors, offices and users.