
-
Architects: Itm Yooehwa Architects
- Area: 674 m²
- Year: 2022
-
Photographs:Yongkwan Kim
-
Lead Architects: Ehwa Yoo

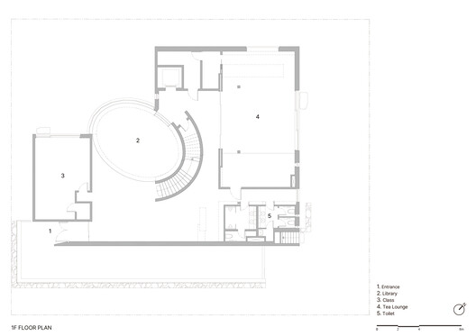
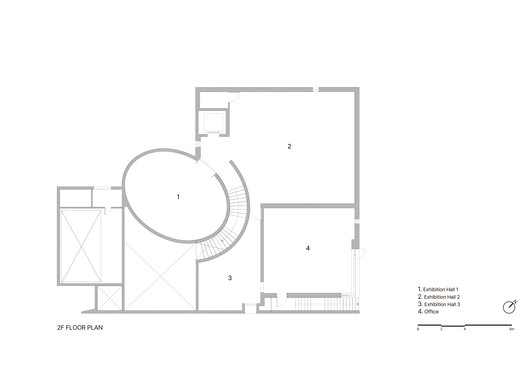
Text description provided by the architects. This is an art museum dedicated to the late Japanese-Korean architect, The Itami Jun Museum was designed with his architectural philosophy that "architecture should be rooted in and bear fruit from the local context and traditions" in mind, as well as the main architectural languages. By adapting to the Jeju locales, he sought not to disturb the horizontal and serene nature of the surrounding Jeju forest, Gokjawal.


























