
-
Architects: Itm Yooehwa Architects
- Area: 1196 m²
- Year: 2024
-
Photographs:Jeon Hyowon, Yongkwan Kim
-
Manufacturers: Burnt wood, C-BLACK, Claymax, Epoxy Terrazzo, LX Hausys, VM zinc
-
Lead Architects: Ehwa Yoo

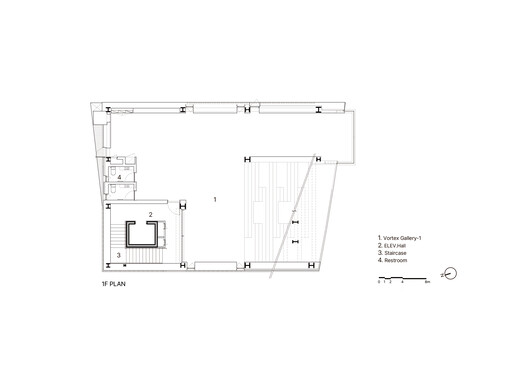
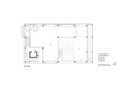
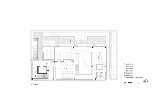
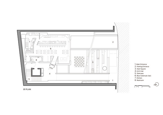
Text description provided by the architects. FEZH reinterprets the spatial logic of Fes El Bali, where clustered dwellings form the foundation of an organic urban fabric. Drawing from this precedent, the project aspires to create a "minimal urban unit" that consolidates essential communal functions for healing, culture, and everyday life. Within the gentle alleyways of Hannam-dong, FEZH positions itself as a compact city—an intersection of architecture, nature, and human experience—embodying its name, which merges Fez, Healing, and Hannam-dong.




























