
-
Architects: TEGET
- Area: 150000 m²
- Year: 2024
-
Photographs:Egemen Karakaya
-
Lead Architect: Mehmet Kütükçüoğlu, Ertuğ Uçar

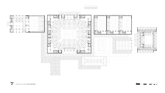
Text description provided by the architects. The Basketball Development Center (BDC) is located at the point where the historic Istanbul Land Walls meet the Sea of Marmara in front of the Yedikule gardens, positioned between the Balıklı Greek Hospital campus and the fortification line. Anchored to the east–west grid established by the Balıklı Greek Hospital, which is organized around courtyards, plazas, and an organic circulation network, the BDC is a basketball campus shaped by the strong context it inhabits.











































